18 Fotos und Anhänge ansehen
IDEAL Immobilien und Hausverwaltung GmbH
Mommsenstraße 9, 08523 Plauen
Madlen Hofmann-Huster

Vermietung

Fassade Logo

Checkliste

01 Flur

02 Flur

03 Wohnen

04 Wohnen

05 Wohnen

06 Schlafen

07 Schlafen

08 Schlafen

09 Kind od. Arbeiten

10 Kind od. Arbeiten

11 Flur oben

12 Flur oben

13 Küche

14 Bad

15 Bad

16 WC

IDEAL - Aufzug, Balkon und Park vor dem Haus - was will man mehr?

Eckdaten

  • Art Maisonettewohnung
  • Lage 08525 Plauen
  • Miete zzgl. NK 390,00
  • Warmmiete 650,00
  • Nebenkosten 260,00
  • Wohnfläche ca. 78
  • Zimmer 3
  • Baujahr 1997
  • Etagenzahl 6
  • Etage 6
  • Alt-/Neubau Neubau
  • Heizungsart Zentralheizung
  • Gäste-WC ja
  • Anzahl Balkone 1
  • Kaution 780,00 €
  • Verfügbar ab 01.02.2026
  • Bodenbelag Laminat
  • Ausstattung des Bades Badewanne Dusche Fenster
  • Zustand Gepflegt
  • Immobilien-ID 2540

Immobilie

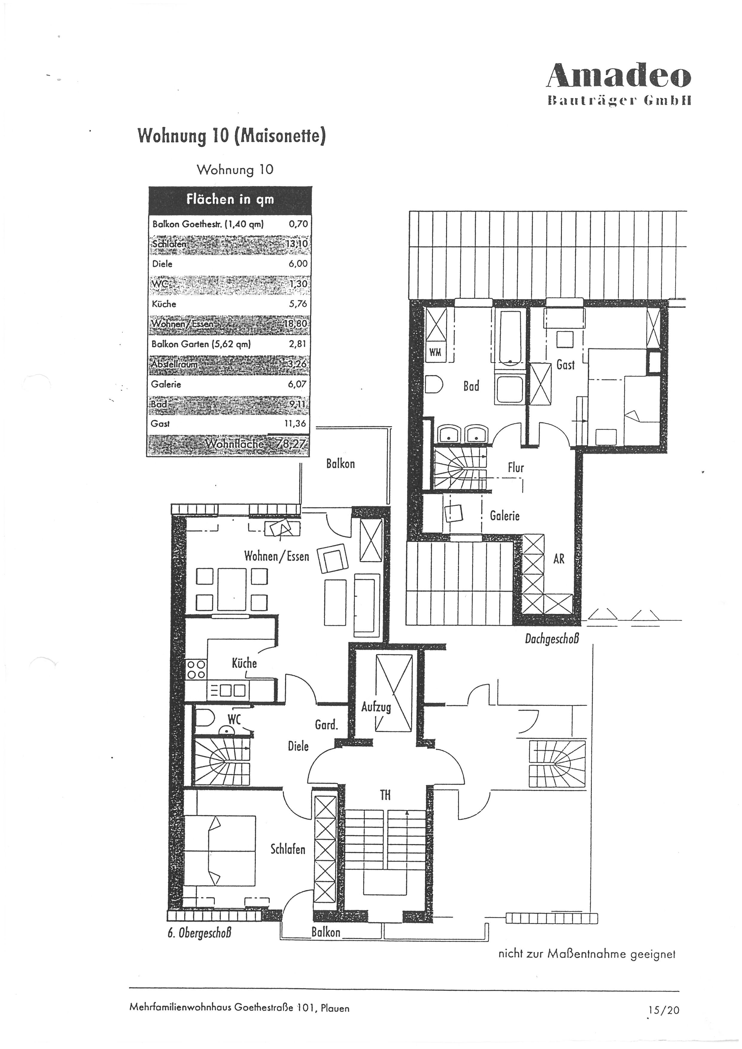
Die zu vermietende 3-Raum Maisonette Wohnung liegt im Dachgeschoss des Mehrfamilienhauses in der Goethestraße 101 in Plauen.

Lage

Das Mehrfamilienhaus liegt im Stadtgebiet Preißelpöhl der Stadt Plauen. Geschäfte mit Waren des
täglichen Bedarfs und öffentliche Verkehrsmittel sind in wenigen Gehminuten zu erreichen. Die
Goethestraße ist verkehrstechnisch gut gelegen, bietet aber ein ruhiges Wohnumfeld. Die Umgebung
bietet in Form von Spazieren oder Radfahren den perfekten Ausgleich nach einem stressigen
Arbeitstag. Nutzen Sie die Vorteile einer gut entwickelten Infrastruktur. Sie finden in der unmittelbaren
Nähe Einkaufsmöglichkeiten, Dienstleistungen aller Art und Schulen.

Ausstattung

Aufteilung der Wohnung: - Wohnen, Schlafen, Kind, Küche, Bad/WC, Gäste WC, Galerie und Balkon
- Küche, Schlaf- und Wohnzimmer sowie Gäste-WC befinden sich in der unteren Etage
- Balkon ist vom Wohnzimmer aus zu begehen
- Kinder/Arbeitszimmerzimmer, Bad und Galerie befinden sich in der oberen Etage
- gefliestes Bad mit Badewanne, Dusche, Handwaschbecken, WM-Anschluss und Fenster
- Laminat
- abgeschlossenes Kellerabteil
- Personenaufzug vorhanden

Keller Aufzug Gäste-WC Balkon vorhanden Rollladen vorhanden

Sonstiges

Alle aktuellen Mietangebote finden Sie auch auf unserer Homepage unter:
www.idealgmbh.de
Konnten wir mit unserem Angebot Ihr Interesse wecken?
…unser Team steht Ihnen gern zur Verfügung.
Alle Angaben ohne Gewähr. Unsere Angaben basieren auf den Informationen der Eigentümer, Ämter,
Behörden oder Dritter, so dass von uns keine Gewährleistung für die Richtigkeit übernommen
werden kann.

Energieausweisangaben

A+
A
B
C
D
E
F
G
H
  • Enerigeausweistyp Verbrauchsausweis
  • Energiekennwert 75 KWh(m²*a)
  • Energieeffizienzklasse C
  • Energie mit Warmwasser ja
  • Energieausweis erstellt am 19.10.2017
  • Energieausweis gültig bis 19.10.2027
  • Heizungsart Zentralheizung
  • Befeuerung / Energieträger Gas

Grundrisse

Wie können wir Ihnen behilflich sein?

Herzlichen Dank für Ihre Anfrage.

Wir werden diese so schnell wie möglich bearbeiten.

Wie können wir Ihnen behilflich sein?
* Pflichtfeld