7 Fotos und Anhänge ansehen
IDEAL Immobilien und Hausverwaltung GmbH
Mommsenstraße 9, 08523 Plauen
Madlen Hofmann-Huster

Vermietung

Fassade

01 Flur

02 Wohnen

03 Schlafen

04 Kind

05 Küche

06 Bad

IDEAL - diese Wohnung wartet auf neue Mieter

Eckdaten

  • Art Wohnung
  • Lage 08523 Plauen
  • Miete zzgl. NK 320,00
  • Warmmiete 500,00
  • Mietpreis pro m² 4,00
  • Nebenkosten 180,00
  • Wohnfläche ca. 78
  • Zimmer 3
  • Baujahr 1930
  • Etagenzahl 4
  • Etage 3
  • Alt-/Neubau Altbau
  • Denkmalschutzobjekt ja
  • Heizungsart Zentralheizung
  • Anzahl Balkone 1
  • Kaution 640,00 €
  • WG geeignet ja
  • Verfügbar ab sofort
  • Bodenbelag Laminat
  • Ausstattung des Bades Badewanne Fenster
  • Zustand Gepflegt
  • Immobilien-ID 11-9336-5

Immobilie

Die zu vermietende 3-Raum Wohnung liegt im 2.Obergeschoss des sanierten Mehrfamilienhauses in der Haußnerstraße 6 in Plauen.

Lage

Das Mehrfamilienhaus liegt nahe dem Zentrum der Stadt Plauen. Geschäfte mit Waren des täglichen Bedarfs und öffentliche Verkehrsmittel sind in wenigen Gehminuten zu erreichen. Die Haußnerstraße ist verkehrstechnisch gut gelegen. Die Umgebung bietet in Form von Spazieren oder Radfahren z. B. im Stadtpark den perfekten Ausgleich nach einem stressigen Arbeitstag.

Ausstattung

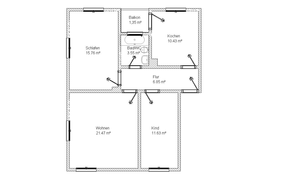
Aufteilung der Wohnung: - Wohnen, Schlafen, Kind, Küche, Bad/WC, Flur und Balkon
- alle Räume sind vom Flur aus zu begehen
- alle Räume haben einen neuen Laminatbelag erhalten
- Bad mit Badewanne, Handwaschbecken, WC und WM-Anschluss
- Fliesenspiegel im Bereich der Küchenzeile
- Zugang zum Balkon über die Küche
- abgeschlossenes Kellerabteil

Keller Aufzug Balkon vorhanden

Sonstiges

Alle aktuellen Mietangebote finden Sie auch auf unserer Homepage unter:

www.idealgmbh.de

Konnten wir mit unserem Angebot Ihr Interesse wecken?
…unser Team steht Ihnen gern zur Verfügung.


Alle Angaben ohne Gewähr. Unsere Angaben basieren auf den Informationen der Eigentümer, Ämter, Behörden oder Dritter, so dass von uns keine Gewährleistung für die Richtigkeit übernommen werden kann.

Energieausweisangaben

  • Energie mit Warmwasser ja
  • Heizungsart Zentralheizung
  • Befeuerung / Energieträger Gas

Grundrisse

Wie können wir Ihnen behilflich sein?

Herzlichen Dank für Ihre Anfrage.

Wir werden diese so schnell wie möglich bearbeiten.

Wie können wir Ihnen behilflich sein?
* Pflichtfeld